产品详情





使用F45型广告扣板机加工出来的产品具有,色彩亮艳,不易变形等优点。 大的优点就是安装方便,只需把龙骨固定在广告牌框架上,然后依次扣入彩钢扣板即可。
F45型广告扣板机技术参数:
外形尺寸:2800*500*1200
机器成型排数:11排 后剪切
机器传动:电机链条传动
电机功率:1.5kw
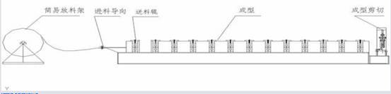
机组包括:成型主机,剪切装置,覆膜装置,放料装置
电控系统:全电脑自动控制,元器件全部使用台达、德力西等 原厂配件。
工作效率:8-10m/min
原材料规格:110mm
成型宽度:65mm










